Илья Беленя
Архитектор
Главная
Обо мне
Услуги
Проекты
Дизайн коммерческих интерьеров
Дизайн частных интерьеров
Архитектура
Клиенты
Контакты
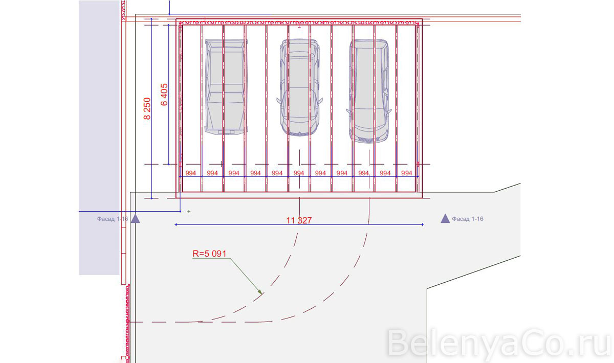
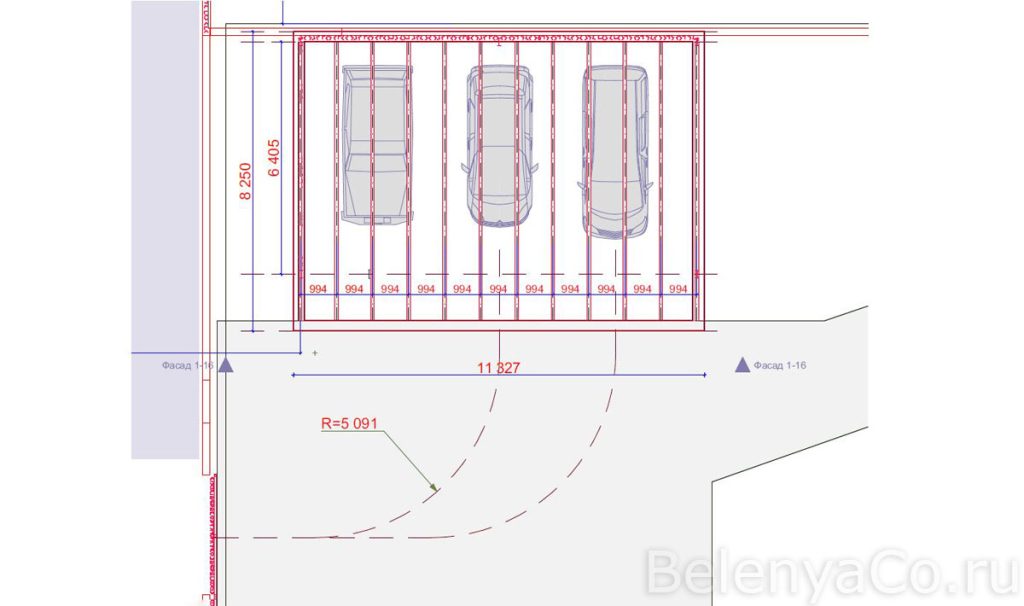
Гараж
Все проекты
© 2020 - 2026 BelenyaCo.ru